Werkstattgebäude Lesebergweg
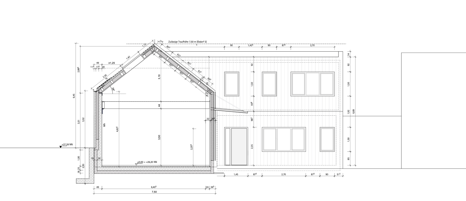
Neubau einer Zimmereiwerkstatt mit Werkhalle, Bürogebäude, Maschinenraum und Lager. Die Konstruktion besteht aus Massivholzwänden und Leimholzbindern und erfüllt modernste Nachhaltigkeits- und Energiestandards.
Die Halle und das Bürogebäude wurde mit einer hinterlüfteten Holzfassade aus heimischen Eichenbrettern verkleidet. Die unbehandelte Holzoberfläche verwittert natürlich und zeigt so eine möglichst authentische Holzoberfläche. Für das Dach der Halle ist wegen der starken Verschattung und Belaubung durch den Baumbestand wegen ihrer Robustheit eine Eindeckung aus Zinkblech gewählt worden. Für die Pflasterung des Hofes wurden die vorhandenen Pflaster-Steine beim Rückbau geborgen, gelagert und wieder verwendet.
Die Wärmedämmung ist, wo möglich, mit nachwachsenden Dämmstoffen erfolgt. Steildach und hinterlüftete Außenwände sind mit nachhaltiger Einblasdämmung aus Holzfaser gedämmt. In den Fassaden sind 3-fach verglaste Holzfenster mit Wärmeschutzverglasung aus Eiche verbaut.
Die Flachdächer erhalten eine Dachbegrünung und nehmen eine großflächige PV-Anlage auf. Für alle Maßnahmen konnten die strengen Anforderungen der IFB Förderungen erfüllt und in vielen Bereichen übertroffen werden.
Projektbeteiligte
Planung: Stefan Sommer, Ben Becker, Christoph Scharpf
Leistungen










